Ponadregionalne Centrum Sportowo-Rekreacyjne
-
Maksym Pękosz
- Obywatel
- Posty: 37
- Rejestracja: 14-05-2010, 12:48
- Lokalizacja: Tarnów
- Kontakt:
Zjeżdżalnia
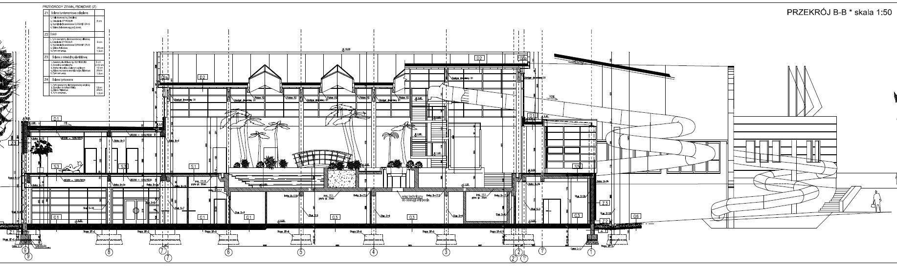
Zobaczcie dwa rzuty elewacji i jeden przekrój przyszłego AquaParku. W ten sposób dowiecie się jak to w projektach wygląda
.
Nie są to materiały ściśle tajne, tylko ściągnięte z dokumentacji projektowej publicznej (SIWZ) zamieszczonej na stronie BIP TOSiR'u
.
Nie są to materiały ściśle tajne, tylko ściągnięte z dokumentacji projektowej publicznej (SIWZ) zamieszczonej na stronie BIP TOSiR'u
No to się cieszę, że będzie rzeka, jeśli chodzi o wodę to jeszcze nie wiadomo 
Ale tak sobie myślę... Jeżeli już się inwestuje tyle kasy, to warto zrobić coś z głową i dodać trochę atrakcji, które tak naprawdę dużo funduszy nie wymagają - mam na myśli właśnie takie coś do skakania, nie wiem jak się nazywa... To taki wysoki murek w kształcie koła z jednym wejściem do środka. Skaka się w nim po przeciwnych stronach tak, żeby rozbujać wodę w środku. Jak ktoś dalej nie wie o co cho to proszę (skoczcie od razu do 1:27).
http://www.youtube.com/watch?v=FsONFCi5mKE O coś takiego mi chodzi, tylko w Bukowinie akurat jest metalowe, ale murowane też mogą być.
Taka rzecz, a ile zabawy... Projektanci powinni o tym pomyśleć. Ale kto wie, może to jest w planach.
A o tym to nawet pomarzyć nie można, bo nigdzie w Polsce nie widziałam, ale sto razy lepsze niż wszystkie rury razem wzięte, mianowicie Sztuczna Fala
:
http://www.youtube.com/watch?v=vJDnkCOnrqs
To też niezły bajer
Moglibyśmy się poczuć jak resztki w zlewie albo rybka spłukiwana w kiblu 
http://www.youtube.com/watch?v=xXRcnklR5sQ
Ale tak sobie myślę... Jeżeli już się inwestuje tyle kasy, to warto zrobić coś z głową i dodać trochę atrakcji, które tak naprawdę dużo funduszy nie wymagają - mam na myśli właśnie takie coś do skakania, nie wiem jak się nazywa... To taki wysoki murek w kształcie koła z jednym wejściem do środka. Skaka się w nim po przeciwnych stronach tak, żeby rozbujać wodę w środku. Jak ktoś dalej nie wie o co cho to proszę (skoczcie od razu do 1:27).
http://www.youtube.com/watch?v=FsONFCi5mKE O coś takiego mi chodzi, tylko w Bukowinie akurat jest metalowe, ale murowane też mogą być.
Taka rzecz, a ile zabawy... Projektanci powinni o tym pomyśleć. Ale kto wie, może to jest w planach.
A o tym to nawet pomarzyć nie można, bo nigdzie w Polsce nie widziałam, ale sto razy lepsze niż wszystkie rury razem wzięte, mianowicie Sztuczna Fala
http://www.youtube.com/watch?v=vJDnkCOnrqs
To też niezły bajer
http://www.youtube.com/watch?v=xXRcnklR5sQ
Zapraszam zatem do odwiedzin Hotelu Gołębiewskiego w Mikołajkach, tam znajdziesz taką "polską" falegosis pisze:A o tym to nawet pomarzyć nie można, bo nigdzie w Polsce nie widziałam, ale sto razy lepsze niż wszystkie rury razem wzięte, mianowicie Sztuczna Fala:
http://www.youtube.com/watch?v=vJDnkCOnrqs
PS. Widzę, że drugi link też z Mikołajek, jest to zjeżdżalnia "Cebula", duże kolejki, ale wielu ludzi wymięka na samej górze
http://www.forum.uniatarnow.net - forum tarnowskiego żużla, zapraszam.
-
Maksym Pękosz
- Obywatel
- Posty: 37
- Rejestracja: 14-05-2010, 12:48
- Lokalizacja: Tarnów
- Kontakt:
Co to będzie.
Wyciąg z SIWZ budowy Parku Wodnego:
.
Mam nadzieję, że teraz rozjaśniłem sprawęPodstawowym celem niniejszego projektu jest stworzenie na bazie istniejącego obiektu –
większego kompleksu sportowo - rekreacyjnego. W ramach rozbudowy zaprojektowano
dodatkową bryłę budynku mieszczącą zespół rekreacyjno – rozrywkowy. Sama hala
basenowa zostanie powiększona dwukrotnie poprzez wykonanie nowej dodatkowej niecki
basenu rekreacyjnego o powierzchni 313m2 mieszczącego wiele atrakcji takich, jak:
gejzery, sztuczna rzeka, bąbelkowa zatoka, sztuczna fala, masaż boczny, masaż karku. W
hali basenowej zaprojektowano również 2 wanny typu whirlpool, brodzik dla małych dzieci
ze zjeżdżalnią prostą, zjeżdżalnię rurową. Znacznie powiększono w wyniku rozbudowy
powierzchnię plaży – w części zachodniej przewidziano miejsce na ustawienie leżaków. Z
hali basenowej zaprojektowano również wyjście na taras od strony południowej, gdzie
przewidziano przewidziano ustawienie leżaków. W pobliżu hali basenowej zaprojektowano
pomieszczenie ratowników z oknem z widokiem na halę i z niezbędnym wyposażeniem
ratowniczym.
-
Blick
rzuf pisze:Jestem tylko ciekaw czy mój karnet będzie przedłużony o miesiące remontu.
wychodzi na to, ze takW związku z planowanymi robotami budowlanymi polegającymi na połączeniu istniejącej pływalni z nowo budowanym Parkiem Wodnym Pływalna Kryta TOSiR przy ul. Piłsudskiego 30 w okresie od 14 czerwca do 31 sierpnia 2010 r. będzie nieczynna.
Ważność wszystkich kart abonamentowych ulega przedłużeniu o czas wyłączenia z eksploatacji Pływalni Krytej TOSiR w zaokrągleniu do pełnych miesięcy.
Przedłużenie ważności kart abonamentowych następuje automatycznie, bez konieczności ich przedatowania.
W okresie wyłączenia z eksploatacji posiadacze kart abonamentowych mogą zamiennie korzystać z usług:
Pływalni Krytej przy ul. Traugutta 5A w Tarnowie-Mościcach w relacji:
1 wstęp karta abonamentowa = 1godzina 30 minut korzystania,
1 wstęp karta abonamentowa = 2 osoby po 45 minut korzystania,
Pływalni Letnich przy: Al. Tarnowskich oraz przy ul. Traugutta 5A w relacji:
1 wstęp karta abonamentowa = pobyt na pływalni letniej w godzinach otwarcia obiektu.
Zachowany zostaje podział na wstępy ulgowe i wstępy zwykłe.